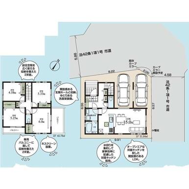
新築売戸建住宅 新座市 石神3丁目 2階建 4LDK
| 価格 | 3,480万円 | 間取り | 4LDK | ||
|---|---|---|---|---|---|
| 交通 | 西武池袋線 / ひばりヶ丘駅 【バス】5分 火の見下 停歩6分 |
||||
| 所在地 | 埼玉県新座市石神3丁目 | ||||
| 築年月 | 2025年12月
|
建物面積 | 97.60㎡ | 土地面積 | 89.84㎡ |
| 私道負担面積 | - | ||||
ポイント
外壁サイディング 24時間換気システム
- 駐車場2台以上
- 南向き
- 閑静な住宅街
- 都市ガス
- システムキッチン
- トイレ2ヶ所
- 追焚き機能
- 二世帯向き
- 角地
- モニター付インターホン
物件詳細情報
| 交通 | 西武池袋線 / ひばりヶ丘駅 【バス】5分 火の見下 停歩6分 |
||
|---|---|---|---|
| その他交通 | - | ||
| 所在地 | 埼玉県新座市石神3丁目 | ||
| 物件種目 | 新築売戸建住宅 | ||
| 価格 | 3,480万円 | 借地期間・地代(月額) | -(-) |
|---|---|---|---|
| 権利金 | - | 敷金/保証金 | -/- |
| 維持費等 | - | その他一時金 | - |
| 設備 | システムキッチン 床下収納 モニタ付インターホン ディンプルキー 浄水器 浴室乾燥機 追焚機能 シャワー付洗面化粧台 人感センサー付照明 ダウンライト 照明器具 | ||
|---|---|---|---|
| 瑕疵保証 | - | ||
| 瑕疵保険 | - | ||
| 評価・証明書 | - | ||
| 備考 | 号棟番号:1号棟 | ||
| エネルギー消費性能 | - | 断熱性能 | - |
|---|---|---|---|
| 目安光熱費 | - |
| 建物名 | 新座石神第三 | ||
|---|---|---|---|
| 間取り(内訳) | 4LDK | 建物面積 | 97.60㎡ |
| 土地面積 | 89.84㎡ | 私道負担面積 | - |
| 築年月 | 2025年12月 | 階建 | 2階建 |
| 駐車場 | - | 建物構造 | 木造 |
| 土地権利 | 所有権 | 都市計画 | 市街化区域 |
| 用途地域 | 1種中高 | 接道状況 | - |
| 建ぺい率 | 60% | 容積率 | 200% |
| 地目 | 宅地 | 地勢 | - |
| 国土法届出 | - | セットバック | - |
| 建築確認番号 | 第25UDI1W建06351号 | ||
| 現況 | 完成済 | 引渡可能時期 | 即時 |
|---|---|---|---|
| 物件番号 | 1026111587 | ||
| 情報公開日 | 2025/11/17 | 次回更新予定日 | 2026/04/21 |
※「-」と表示されている項目については、情報提供会社にご確認ください。
情報提供会社
(株)オフィス武陽 本店
- 交通:
- 西武池袋・豊島線/清瀬 徒歩2分
- 住所:
- 東京都清瀬市元町1丁目1-10
- TEL:
- 042-491-8855
- FAX:
- 042-491-8857
- 所属団体など:
(公社)東京都宅地建物取引業協会会員 (公社)首都圏不動産公正取引協議会加盟 - 取引態様:
- 媒介
- 免許番号:
- 国土交通大臣免許(4)第7369号
- 間取図は、現況を優先させていただきます。
- 映像は物件の一部を撮影したものです。物件の契約にあたっての最終判断はご自身の判断に基づいて行ってください。
-
仲介手数料について
仲介手数料とは 売主と買主の契約の仲立ちを行う不動産会社に支払う報酬です。
宅地建物取引業法等(法第46条・建設省告示第1552号他)により取引態様ごとに受け取ることのできる報酬の上限額が定められています。
取引態様が「売主」の場合は不要です。
「媒介(一般・専任・専属専任)」「仲介」の場合、売買代金を以下のように区分し、それぞれ定められた割合を乗じて得た金額の合計額が上限となります。
(建物に係る消費税額を除外した額)200万円以下の金額 5.5% 200万円を超え400万円以下の金額 4.4% 400万円を超える金額 3.3%
※参考 簡易計算方式(算出した金額が上限額となります。)200万円を超え400万円以下の場合 4.4%+2.2万円 400万円を超える場合 3.3%+6.6万円
「代理」の場合、一つの取引において、上記仲介の計算方法により算出した金額の2倍以内が上限となります。
※「低廉な空家等」物件については、特例により上記上限額を超える場合があります。
物件によって金額が異なります。
お問い合わせの際は十分ご確認ください。 - 消費税について
当サイトの課税対象となる物件価格およびその他費用等は、税込み表示となっております(100円未満は切上げ)。
詳しくは、当社までお問い合わせください。
